デッドスペース“0”
床収納部の天井が高いのでステージに人が乗っても頭が当たりません。
簡単に展開・収納できる様子をご覧いただけます。
※このムービーは15倍速で表示されています。
操作/取扱い説明はこちらの動画をご覧ください。
従来の2ツ折ステージ
従来の2ツ折ステージは収納部の天床高が低く、ステージ全体を活用できないことがありました。
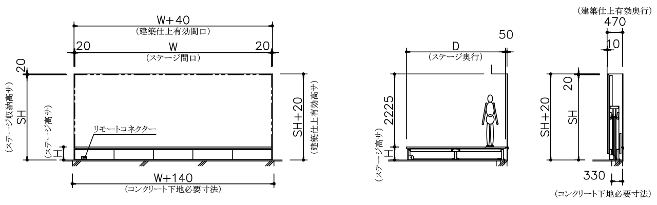
ND-30/NS-30
スぺースを広々と利用可能!
ステージの収納部を高くして、利用時のデッドスペースをなくしました。
※一部対応できないサイズもございます。詳しくはお問い合わせください。
※床材の長尺シート仕様は、剥離の恐れがあるため不適切です。
リモートスイッチ(標準仕様)
操作盤仕様
リモート受け
ND-30を展開した時に、ステージ側面の目隠しになります。幕板の仕上材は、設置場所の内装意匠に合わせることができます。
ステージ奥行 4,000mm以下
SH=2400-195+H
ステージ奥行 4,001mm以上
SH=3000-195+H
| 床材 | t12ナラフローリング |
|---|---|
| 框 | ナラ集成材 |
| 幕板 | ナラ木目ポリエステル化粧合板貼り |
| 走行ローラー | ウレタンゴム |
| 駆動 | 三相200V(単相200V、単相100Vも対応可) |
※床材・框・幕板は、設置場所の内装意匠に合わせて様々な材質で対応できます。
※収納部にはコンクリート下地が必要です。
※下記サイズは規格サイズです。サイズ・台数は建築計画にあわせて自由に設定できます。
(単位:mm)
| 横幅 | 奥行き | 高さ |
| 4000 | 3000 | 300 |
| 400 | ||
| 600 | ||
| 3500 | 300 | |
| 400 | ||
| 600 | ||
| 5000 | 3000 | 300 |
| 400 | ||
| 600 | ||
| 3500 | 300 | |
| 400 | ||
| 600 | ||
| 6000 | 3000 | 300 |
| 400 | ||
| 600 | ||
| 800 | ||
| 3500 | 300 | |
| 400 | ||
| 600 | ||
| 800 | ||
| 4000 | 400 | |
| 600 | ||
| 800 | ||
| 7000 | 3000 | 300 |
| 400 | ||
| 600 | ||
| 800 | ||
| 3500 | 300 | |
| 400 | ||
| 600 | ||
| 800 | ||
| 4000 | 400 | |
| 600 | ||
| 800 | ||
| 8000 | 3000 | 400 |
| 600 | ||
| 800 | ||
| 3500 | 400 | |
| 600 | ||
| 800 | ||
| 4000 | 600 | |
| 800 |
| 横幅 | 奥行き | 高さ |
| 9000 | 3000 | 400 |
| 600 | ||
| 800 | ||
| 3500 | 400 | |
| 600 | ||
| 800 | ||
| 4000 | 400 | |
| 600 | ||
| 800 | ||
| 4500 | 600 | |
| 800 | ||
| 10000 | 3000 | 400 |
| 600 | ||
| 800 | ||
| 3500 | 400 | |
| 600 | ||
| 800 | ||
| 4000 | 400 | |
| 600 | ||
| 800 | ||
| 4500 | 600 | |
| 800 | ||
| 5000 | 600 | |
| 800 | ||
| 11000 | 3000 | 400 |
| 600 | ||
| 800 | ||
| 3500 | 400 | |
| 600 | ||
| 800 | ||
| 4000 | 400 | |
| 600 | ||
| 800 | ||
| 4500 | 600 | |
| 800 | ||
| 5000 | 800 | |
| 12000 | 3000 | 400 |
| 600 | ||
| 800 | ||
| 3500 | 400 | |
| 600 | ||
| 800 |
| 横幅 | 奥行き | 高さ |
| 12000 | 4000 | 400 |
| 600 | ||
| 800 | ||
| 4500 | 800 | |
| 5000 | 800 | |
| 13000 | 3500 | 400 |
| 600 | ||
| 800 | ||
| 4000 | 400 | |
| 600 | ||
| 800 | ||
| 4500 | 800 | |
| 5000 | 800 | |
| 14000 | 3500 | 400 |
| 600 | ||
| 800 | ||
| 4000 | 600 | |
| 800 | ||
| 4500 | 800 | |
| 5000 | 800 | |
| 15000 | 3500 | 400 |
| 600 | ||
| 800 | ||
| 1000 | ||
| 4000 | 600 | |
| 800 | ||
| 1000 | ||
| 4500 | 800 | |
| 1000 | ||
| 5000 | 1000 | |
| 16000 | 3500 | 400 |
| 600 | ||
| 800 | ||
| 1000 | ||
| 4000 | 600 | |
| 800 | ||
| 1000 | ||
| 4500 | 800 | |
| 1000 | ||
| 5000 | 1000 |
納入したステージを多数紹介しています。
BLOGをチェック!
どのステージにするかお悩みですか?
クイックWEB診断はこちら!